Renovation Küche, Ess- und Wohnzimmer

Von der Planung bis zum fertigen Wohntraum: Die Bilder zeigen den stilvollen Umbau und die Verbindung von Küche, Ess- und Wohnbereich zu einem offenen, modernen Lebensraum.

Situation vor dem Umbau

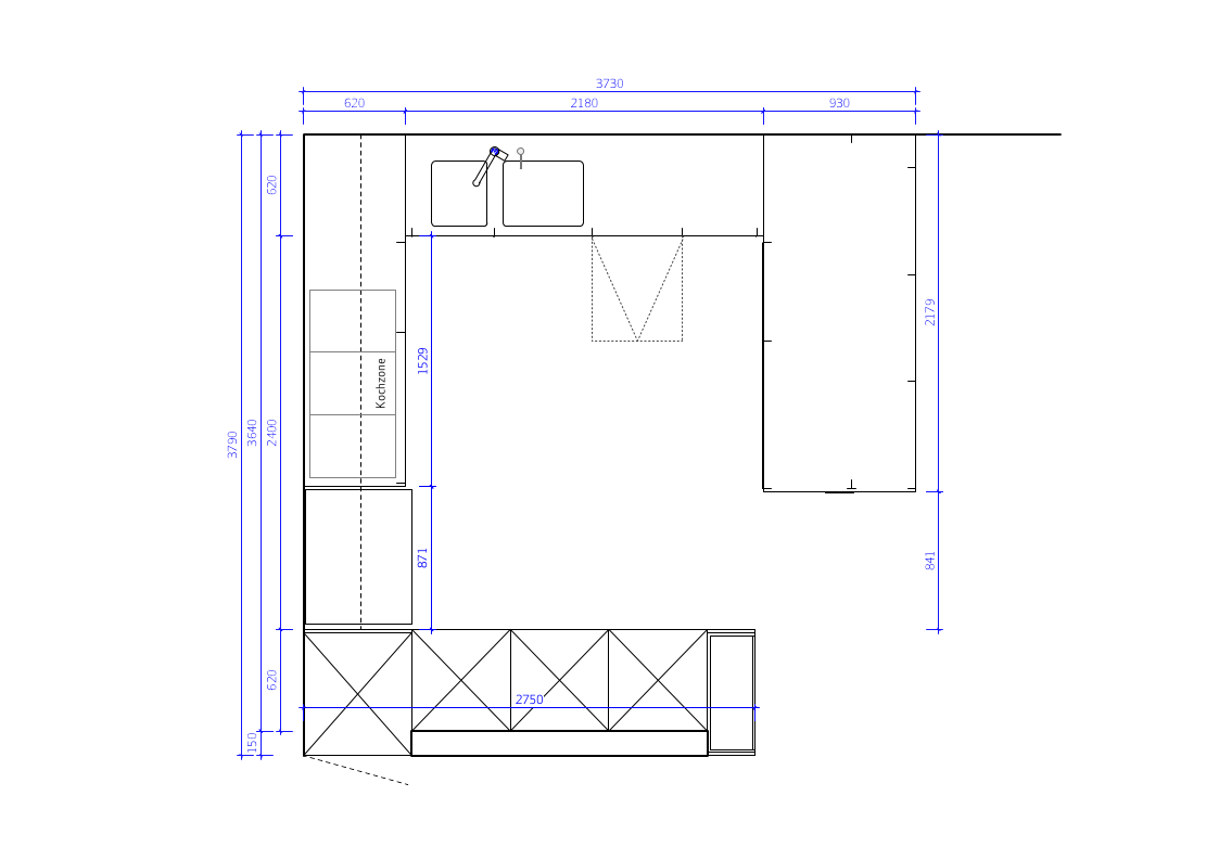
Pläne und 3D Visualisierung

Umbauphase

Fertige Renovation

Schreiben Sie einen Kommentar

Ihre E-Mail-Adresse wird nicht veröffentlicht. Erforderliche Felder sind mit * markiert